Frequently Asked Questions
How long to put up log home kit?
The time required to assemble a log home kit varies based on the builder's experience and the complexity of the design, but typically ranges from a few days to a few weeks for complete assembly.
What does a log home kit cost?
The cost of a log home kit varies based on customization and features, with the Little Twig 950 Cedar Log home kit starting at competitive pricing that reflects its quality materials and energy-efficient design.
How much does it cost to build a log home kit?
The cost to build a log home kit varies based on size and customization options. For our Little Twig 950 Cedar Log home kit, pricing starts at an accessible rate, ensuring a sustainable and charming living solution.
What comes in a log home kit?
A log home kit includes precision-milled 6×6 Northern White Cedar logs, Andersen windows and doors, interior finishes, trim, and detailed construction drawings, all designed for easy DIY assembly or builder installation.
What is a log home kit?
A log home kit is a complete package that includes pre-cut materials and components necessary for constructing a log home, designed for DIY assembly or with a builder, promoting eco-friendly living and energy efficiency.
What materials are included in a log home kit?
The materials included in a log home kit consist of precision-milled 6×6 Northern White Cedar logs, Andersen windows and doors, interior finishes, trim, and detailed construction drawings, all designed for easy DIY assembly or builder assistance.
How customizable is a log home kit?
The customization options for a log home kit are extensive. You can choose various elements like window styles, door finishes, and even roof shingle colors to create a home that reflects your personal style while maintaining the durability and charm of Northern White Cedar.
What is the assembly time for a log home kit?
The assembly time for a log home kit can vary based on experience and team size, but typically ranges from a few days to a couple of weeks for completion.
Are there financing options for log home kits?
Financing options for log home kits are available to help make your dream home more accessible. We encourage you to contact us for details on financing solutions tailored to your needs.
What are the benefits of a log home kit?
The benefits of a log home kit include eco-friendly construction, energy efficiency, and the use of high-quality materials like Northern White Cedar, providing durability and rustic charm while allowing for customizable DIY assembly to suit individual preferences.
How do I maintain a log home kit?
Maintaining a log home kit involves regular inspections for signs of moisture, pests, and damage, along with periodic cleaning and re-staining to protect the wood. Ensure proper drainage and ventilation to enhance durability and longevity.
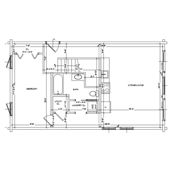
What sizes are available for log home kits?
The available sizes for log home kits from Little Twig Homes include 400 square feet and 950 square feet options. These kits are designed for DIY assembly and come with all necessary materials for construction.
Can I modify my log home kit order?
Modifying your log home kit order is possible. We encourage you to contact us as soon as possible to discuss your customization options and any changes you wish to make to ensure your kit meets your specific needs.
What is the warranty on a log home kit?
The warranty on a log home kit covers the structural integrity of the materials provided, typically lasting for several years. For specific details regarding coverage and duration, please refer to our warranty policy or contact us directly.
How do I choose a log home kit?
Choosing a log home kit involves considering factors such as size, design, energy efficiency, and materials. Focus on the quality of cedar, customization options, and whether you prefer DIY assembly or professional assistance for your project.
What tools are needed for log home assembly?
The tools needed for log home assembly include a circular saw, hammer, level, tape measure, and drill. Additionally, having a ladder and safety gear is essential for a safe and efficient building process.
Are there eco-friendly options for log home kits?
Eco-friendly options for log home kits are available through Little Twig Homes. Our Northern White Cedar log kits are sustainably sourced, energy-efficient, and designed for minimal environmental impact, making them an excellent choice for eco-conscious builders and homeowners.
What is the delivery process for log home kits?
The delivery process for log home kits involves shipping complete pre-cut DIY kits directly to your prepared foundation site. Each kit includes all necessary materials for assembly, ensuring a smooth and efficient setup for your new home.
How do I prepare my site for a log home kit?
Preparing your site for a log home kit involves ensuring a stable, level foundation that can support the weight of the structure. Clear the area of debris and vegetation, and consult local building codes for any specific requirements.
What are common mistakes when building a log home kit?
Common mistakes when building a log home kit include inadequate planning, neglecting to follow assembly instructions, and overlooking the importance of a proper foundation. These errors can lead to structural issues and increased costs.
Can I get support during log home assembly?
Support during log home assembly is available through Little Twig Homes. Our team offers guidance and resources to ensure a smooth DIY experience, helping you successfully construct your cedar log home with confidence.
What is the average lifespan of a log home kit?
The average lifespan of a log home kit is typically around 50 to 100 years, depending on the quality of materials, maintenance, and environmental factors. Little Twig Homes uses durable Northern White Cedar, enhancing longevity and sustainability.
How do I insulate a log home kit?
Insulating a log home kit involves using high-quality materials to enhance energy efficiency. Consider incorporating spray foam insulation between the logs, adding insulation to the roof and floors, and sealing any gaps to maintain a comfortable indoor climate.
What are the energy efficiency ratings for log homes?
The energy efficiency ratings for log homes indicate their excellent insulation properties and energy-saving capabilities. Typically, log homes can achieve R-values around R-20 to R-30, depending on the log thickness and design, promoting sustainable living.
Can I build a log home kit in winter?
Building a log home kit in winter is possible. However, it requires careful planning to manage cold weather conditions, ensuring proper materials handling and assembly techniques to maintain efficiency and safety during construction.
What are the zoning requirements for log homes?
The zoning requirements for log homes vary by location and typically include regulations on land use, building codes, and setback distances. It's essential to check with local authorities to ensure compliance before construction.
How do I find a builder for my log home kit?
Finding a builder for your log home kit can be achieved by researching local contractors who specialize in log home construction or DIY projects. Additionally, consult the Little Twig Homes network for recommendations and resources to connect with experienced builders.
What are the best locations for log homes?
The best locations for log homes are typically in scenic, wooded areas or near lakes and mountains, where the natural surroundings enhance the rustic charm and eco-friendly appeal of cedar log construction.
How do I finish the interior of a log home?
Finishing the interior of a log home involves selecting appropriate materials such as drywall, wood paneling, or tongue-and-groove planks, while also considering insulation, flooring, and fixtures to enhance the rustic charm and energy efficiency of the space.
What are the design options for log home kits?
The design options for log home kits include customizable features such as precision-milled Northern White Cedar logs, various window and door styles, and interior finishes, allowing you to create a unique and energy-efficient living space tailored to your preferences.